Happy Summer!
Recently, we have been working on several custom wine rooms and sleek bar areas for our build to suit projects, so my trip to Napa Valley couldn’t have come at a better time!
(Great excuse to travel for work inspiration:)
First stop was the home of one of my favorite wines, Silver Oak, and they hit a home run for their bottle storage. I love gathering first hand research and sipping along the way;).
The cave tour at Del Dotto was a treat as well since we tasted straight out of the barrels.
If you haven’t tried Alpha Omega or visited
the winery, make it a must! It was definitely
a pleasant surprise!
A Client Project – Custom Wine Room and Bar!
This custom wine room and bar in our lovely client’s home has come to life with the concepts and visions from both our team and client!
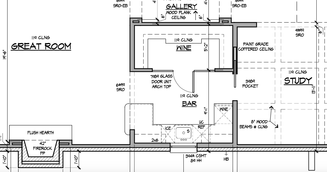
From this snippet of their blueprint, you can see how the wine room and bar area serves as a connector between the Great Room and Study
We started from several gorgeous Wine Room concepts to get our wheels turning.
We loved the idea of using storefront glass to add a modern touch and showcase the collection.
From this point, we do what we do best at
TCI…we provide great visuals for our clients
in order for them to see the space created
before it is built.
We took the concept of showcasing three
large specialty bottles and added the client’s idea of a large lazy susan to the center… and it came to life.
WINE ROOM:
For the Bar area, we loved this streamlined look that provided a modern yet organized appearance.
BAR AREA:
Thinking outside the box with the flip
cabinet doors,
yet providing adequate storage for
Scotch and glassware.
We can’t wait to see this space complete!!
Stay tuned for more … 😉
_______________________________________________________________________
TCI Needs YOUR help!
Because of the success Traci Connell Interiors is experiencing, our banker invited us to participate in the Mission: Main Street Grants with Chase Bank. If we were to be selected to receive a grant then we would be able expand our company even more allowing to employ more people as well as develop our coaching and mentoring program which will empower 100s if not 1000s of entrepreneurs to learn from our success at TCI.
Please take a minute and vote for us by following this link. The first step we need to take is to receive 250 votes.
VOTE HERE:
